Image

Grote Geschakelde Woning in Málaga

€345.000
Alert Icon
 Niet opgeslagen
Deel op whatsapp
Costa del Sol
,  
Málaga

Grote Geschakelde Woning in Málaga

Image

Type woning

Huis

Image

Slaapkamers

2

Image

Badkamers

2

Image

Perceel

0

m2

Image

Area size

110

m2

Beschrijving:

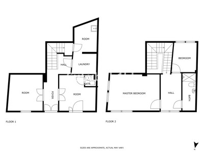
For sale, a charming corner house that exudes the allure of traditional popular architecture in Málaga. This property is located in the Molinillo neighborhood, in the central district of Málaga. It's just a 10-minute walk from the historic center, brimming with local services and commerce, allowing you to feel at home while being close to the vibrant tourist area. The area's main attraction is the Salamanca Market, a Mudéjar-style building known for its unique and widely recognized architecture. The house is spread over two floors and boasts two facades that provide ample natural light. The facade stands out with its vibrant colors, elegant cornices, and curved wooden windows. We are also captivated by the generous ceiling height on both the ground floor and the first floor, as well as the exposed wooden beams that add a special charm. The current layout of the house includes an entrance hall on the ground floor, with an old garage on one side, converted into a room or lounge, and a bedroom on the other. Moving to the rear of the property, you'll find a kitchen and a patio with a laundry area. Additionally, there's a convenient bathroom on this floor. A beautiful staircase, adorned with Andalusian-style tiles and centrally located, leads to a well-lit upper floor with sloping wooden ceilings and curved wooden windows throughout. Here, you'll discover two bedrooms and a spacious bathroom. The property is sold with a project of adding a roof terrace to the rear of the property. If you need more information about expansion possibilities, please don't hesitate to ask. As an added bonus, the price includes 1 parking space in the basement of a building on the same street. Whether you're looking for a new home in Málaga or an investment with high income potential, this property is your best choice. Feel free to contact us for more details and to schedule a visit. This opportunity should not be overlooked.

Kenmerken:

R5085484
  • ✅ Uitzicht : Stedelijk
-4.425557

Locatie van de woning (bij benadering)

36.7178196

Plan een bezichtiging!

Interesse in deze woning?
Vul je gegevens in en wij nemen
binnen twee werkdagen contact met je op om alle details te bespreken of een bezichtiging in te plannen.

Thank you! Your submission has been received!
Oops! Something went wrong while submitting the form.

Vergelijkbare woningen

Project Image

Te koop

380000
€380.000
Geschakelde Woning met zwembad in Campo Mijas
Icon
3
 Bed
Icon
2
 Bad
Icon
Costa del Sol
Icon
93
m2
Campo Mijas
Geschakelde Woning
Bestaande bouw
0

Heading 1

Heading 2

Heading 3

Heading 4

Heading 5
Heading 6

Lorem ipsum dolor sit amet, consectetur adipiscing elit, sed do eiusmod tempor incididunt ut labore et dolore magna aliqua. Ut enim ad minim veniam, quis nostrud exercitation ullamco laboris nisi ut aliquip ex ea commodo consequat. Duis aute irure dolor in reprehenderit in voluptate velit esse cillum dolore eu fugiat nulla pariatur.

Block quote

Ordered list

  1. Item 1
  2. Item 2
  3. Item 3

Unordered list

  • Item A
  • Item B
  • Item C

Text link

Bold text

Emphasis

Superscript

Subscript

Project Image

Te koop

380000
€380.000
Grote Geschakelde Woning met zwembad in Diana Park
Icon
3
 Bed
Icon
2
 Bad
Icon
Costa del Sol
Icon
108
m2
Diana Park
Geschakelde Woning
Bestaande bouw
0

Heading 1

Heading 2

Heading 3

Heading 4

Heading 5
Heading 6

Lorem ipsum dolor sit amet, consectetur adipiscing elit, sed do eiusmod tempor incididunt ut labore et dolore magna aliqua. Ut enim ad minim veniam, quis nostrud exercitation ullamco laboris nisi ut aliquip ex ea commodo consequat. Duis aute irure dolor in reprehenderit in voluptate velit esse cillum dolore eu fugiat nulla pariatur.

Block quote

Ordered list

  1. Item 1
  2. Item 2
  3. Item 3

Unordered list

  • Item A
  • Item B
  • Item C

Text link

Bold text

Emphasis

Superscript

Subscript

Project Image

Te koop

380000
€380.000
Grote Geschakelde Woning met ruime tuin in Gata de Gorgos
Icon
4
 Bed
Icon
2
 Bad
Icon
Costa Blanca
Icon
136
m2
Gata de Gorgos
Geschakelde Woning
Bestaande bouw
73

Heading 1

Heading 2

Heading 3

Heading 4

Heading 5
Heading 6

Lorem ipsum dolor sit amet, consectetur adipiscing elit, sed do eiusmod tempor incididunt ut labore et dolore magna aliqua. Ut enim ad minim veniam, quis nostrud exercitation ullamco laboris nisi ut aliquip ex ea commodo consequat. Duis aute irure dolor in reprehenderit in voluptate velit esse cillum dolore eu fugiat nulla pariatur.

Block quote

Ordered list

  1. Item 1
  2. Item 2
  3. Item 3

Unordered list

  • Item A
  • Item B
  • Item C

Text link

Bold text

Emphasis

Superscript

Subscript