
Type woning
Slaapkamers
Badkamers
Perceel
Area size
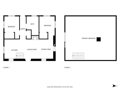
Fantastic investment opportunity: Beautiful and cozy renovated country house nestled on a rustic, fenced 1,927 m2 plot in the Rio Grande area of Cártama. The house has a surface area of 156 m2 spread over two floors, with two spacious bedrooms, a full conventional bathroom with a shower, and an outdoor toilet. The second floor is open-plan with a loft and solid Finnish red pine floor and ceiling. It has a laundry/storage room, a living room with a highly efficient cassette fireplace with a sash and swing door. The spacious kitchen features tilt-and-turn PVC windows, double-glazed windows, thick walls for excellent thermal insulation, and a meticulous rustic Andalusian style that provides a touch of warmth and freshness to each room. It has a high-powered three-phase electrical supply suitable for fast charging of electric vehicles. Located in an idyllic natural setting, it offers tranquility and wonderful unobstructed views of the Guadalhorce Valley, just 5 minutes from the Málaga-Pizarra highway and 15 minutes from the regional hospital. The property is easily accessible from Málaga, Pizarra, Coín, Villafranco, Cerralba, and Cártama Pueblo. If you're looking to live or invest in a unique setting of peace and tranquility, yet still have easy access to the city, don't hesitate to visit this property.
Interesse in deze woning?
Vul je gegevens in en wij nemen
binnen twee werkdagen contact met je op om alle details te bespreken of een bezichtiging in te plannen.

Te koop
Lorem ipsum dolor sit amet, consectetur adipiscing elit, sed do eiusmod tempor incididunt ut labore et dolore magna aliqua. Ut enim ad minim veniam, quis nostrud exercitation ullamco laboris nisi ut aliquip ex ea commodo consequat. Duis aute irure dolor in reprehenderit in voluptate velit esse cillum dolore eu fugiat nulla pariatur.
Block quote
Ordered list
Unordered list
Bold text
Emphasis
Superscript
Subscript

Te koop
Lorem ipsum dolor sit amet, consectetur adipiscing elit, sed do eiusmod tempor incididunt ut labore et dolore magna aliqua. Ut enim ad minim veniam, quis nostrud exercitation ullamco laboris nisi ut aliquip ex ea commodo consequat. Duis aute irure dolor in reprehenderit in voluptate velit esse cillum dolore eu fugiat nulla pariatur.
Block quote
Ordered list
Unordered list
Bold text
Emphasis
Superscript
Subscript

Te koop
Lorem ipsum dolor sit amet, consectetur adipiscing elit, sed do eiusmod tempor incididunt ut labore et dolore magna aliqua. Ut enim ad minim veniam, quis nostrud exercitation ullamco laboris nisi ut aliquip ex ea commodo consequat. Duis aute irure dolor in reprehenderit in voluptate velit esse cillum dolore eu fugiat nulla pariatur.
Block quote
Ordered list
Unordered list
Bold text
Emphasis
Superscript
Subscript